-
Gebäude -
Ansicht Haus -
Beispiel Kochen-Essen -
Beispiel Bad -
Ausbaureserve Dachgeschoss -
Treppenhaus -
Rückansicht -
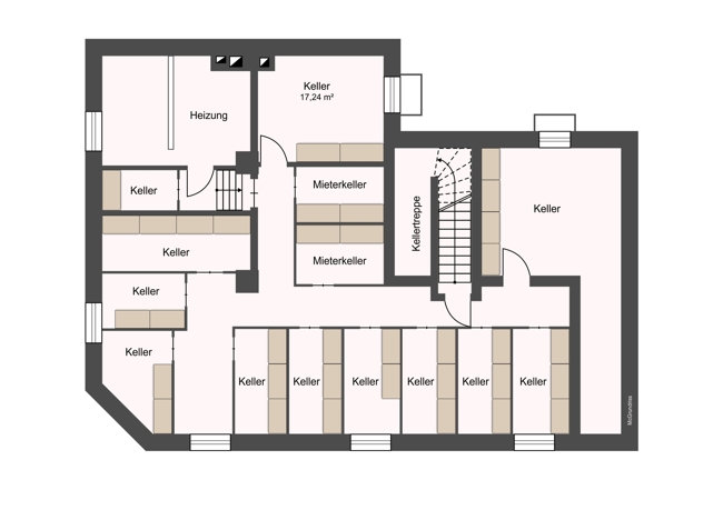
Grundriss KG -
Grundriss EG
Objektdaten
Wohnfläche:
ca. 897.56 m²
ZIMMER:
25
OBJEKT-NR.:
MS3031
KAUFPREIS:
6.299.000,00 €
PROVISION:
3,57 % inkl. der gesetzl. MwSt. vom notariell beurkundeten Kaufpreis
Beschreibung
Bei dieser exklusiv von uns zum Kauf angebotenen Immobilie handelt es sich um ein Wohn- und Geschäftshaus, das sowohl durch seine Mikro- als auch durch seine Makrolage begeistert.
Das viergeschossige Gebäude aus dem Baujahr 1955 überzeugt durch seine klare, zeittypische Architektur und eine solide Bauweise. Insgesamt umfasst das Haus 12 Wohneinheiten zwischen ca. 42 und 80 m² sowie einer Gewerbeeinheit im Erdgeschoss mit ca. 176 m²; die vermietbare Gesamtfläche beträgt ca. 897 m². Aktuell steht eine Wohneinheit frei.
Die Wohneinheiten wurden laufend vom Eigentümer renoviert und befinden sich in einem gepflegten Zustand. Im Dachgeschoss befindet sich noch eine Ausbaureserve. Es können zwei weitere Wohnungen geschaffen werden. Eine erste Planung liegt hierzu bereits vor.
Das Gebäude ist nicht im Sinne des WEG aufgeteilt und befindet sich in einem Erhaltungssatzungsgebiet. Miete p.a. IST: € 160.957,92
Lage
80339 München
Toll gelegenes Eckgrundstück an der Schwanthalerhöhe. In direkter Nähe befinden sich zahlreiche Einkaufsmöglichkeiten (Supermarkt, Apotheke etc.), Restaurants, sowie eine hervorragende Infrastruktur und Anbindung an das Nahverkehrsnetz. Die U-Bahn Haltestelle "Schwanthalerhöhe" ist fußläufig in 5 Minuten zu erreichen.
Toll gelegenes Eckgrundstück an der Schwanthalerhöhe. In direkter Nähe befinden sich zahlreiche Einkaufsmöglichkeiten (Supermarkt, Apotheke etc.), Restaurants, sowie eine hervorragende Infrastruktur und Anbindung an das Nahverkehrsnetz. Die U-Bahn Haltestelle "Schwanthalerhöhe" ist fußläufig in 5 Minuten zu erreichen.
AUSSTATTUNG
+ Eckgrundstück mit ca. 274 m²
+ Deckenhöhe in den Wohnungen ca. 2,57 Meter
+ Heizkessel wurde 2014 erneuert
+ Kunststofffenster 2-fach verglast
+ Haus ist unterkellert (trocken)
+ Zentrale Gasheizung
+ Warmwasserversorgung dezentral über Gas-Durchlauferhitzer in den Einheiten
+ Satteldach mit Holzbalkendachstuhl
+ Deckenhöhe in den Wohnungen ca. 2,57 Meter
+ Heizkessel wurde 2014 erneuert
+ Kunststofffenster 2-fach verglast
+ Haus ist unterkellert (trocken)
+ Zentrale Gasheizung
+ Warmwasserversorgung dezentral über Gas-Durchlauferhitzer in den Einheiten
+ Satteldach mit Holzbalkendachstuhl
Energie
Wesentliche Energieträger:Gas
Energieausweistyp:Verbrauchsausweis
Energieverbrauchkennwert:88.80 kWh/(m²*a)
SONSTIGE ANGABEN
Alle Angaben sind ca. Angaben, freibleibend, unverbindlich, ohne Gewähr und basieren ausschließlich auf Informationen, die uns von unserem Auftraggeber mitgeteilt wurden. Wir übernehmen keine Gewähr für Vollständigkeit, Richtigkeit und Aktualität. Wir haben diese Angaben nicht überprüft. Zwischenvermittlung bleibt vorbehalten. Gerne stehen wir Ihnen mit weiteren Informationen zur Immobilie sowie für Besichtigungen zur Verfügung.
Makler kontaktieren
Kontaktanfrage an Emslander & Company
Wohn- und Geschäftshaus mit Potential an der Schwanthalerhöhe
Expose: MS3031
Kontakt
Herr Maximilian Straßer
Email: strasser@emslander-co.de
Telefon: 004989416177110
Mobil: 00491722015906




