-
Hausansicht -
Büro -
Büro -
Büro -
Fassade -
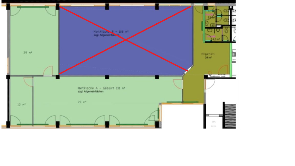
Grundriss
Objektdaten
GESAMTFLÄCHE:
ca. 149.53 m²
OBJEKT-NR.:
JW969
MIETE / m²:
8,00 €
PROVISION:
1,5 Nettokaltmieten zzgl. MwSt.
Beschreibung
Neuwertige, sehr helle Bürofläche in Hallbergmoos.
Das Büro verfügt über zwei große, individuelle Büroräume sowie einem kleinen Abstell-/Serverraum. Die Küche sowie die Damen & Herren WCs befinden sich in Gemeinschaftsnutzung mit einer weiteren Partei.
Sichtbare und repräsentative Firmendarstellung im und am Bürogebäude möglich.
Lage
85399 Hallbergmoos
Das Objekt liegt in unmittelbarer Nähe zum Flughafen München und ist perfekt an die A92 München angebunden. Die Innenstadt in München erreichen Sie in ca. 30 Minuten mit dem Auto oder der S-Bahn. Flughafen-Shuttle und Bushaltestelle sind fußläufig zu erreichen. Standortvorteile: + Günstiger Hebesatz (320) + Genügend Parkplätze + Infrastruktur
Das Objekt liegt in unmittelbarer Nähe zum Flughafen München und ist perfekt an die A92 München angebunden. Die Innenstadt in München erreichen Sie in ca. 30 Minuten mit dem Auto oder der S-Bahn. Flughafen-Shuttle und Bushaltestelle sind fußläufig zu erreichen. Standortvorteile: + Günstiger Hebesatz (320) + Genügend Parkplätze + Infrastruktur
AUSSTATTUNG
+ großzügige Fensterfronten
+ hochwertiger Laminatboden
+ abgehängte Rasterdecke mit LED-Flach-Panels
+ außenliegender, elektrischer Sonnenschutz
+ TG-und Freistellplätze zur Anmietung
+ Personenaufzug
+ hochwertiger Laminatboden
+ abgehängte Rasterdecke mit LED-Flach-Panels
+ außenliegender, elektrischer Sonnenschutz
+ TG-und Freistellplätze zur Anmietung
+ Personenaufzug
Energie
Energieausweistyp:Bedarfsausweis
SONSTIGE ANGABEN
Alle Informationen zu Preisen, Flächen und Ausstattung beruhen auf den Angaben des Eigentümers beziehungsweise Vermieters. Wir übernehmen keine Gewähr für die Richtigkeit dieser Angaben.
Die Mieter- beziehungsweise Käuferprovision ist verdient und fällig mit Abschluss des Miet- beziehungsweise Kaufvertrages.
Sie haben noch nicht das Richtige gefunden? Rufen Sie uns an, wir beraten Sie gerne. 089 - 416 177 122
Makler kontaktieren
Kontaktanfrage an Emslander & Company
Neuwertige Bürofläche in modernem, repräsentativem Geschäftshaus
Expose: JW969
Kontakt
Vermietungsteam
Email: vermietung@emslander-co.de
Telefon: 004989416177122
Mobil:




