-
Büro -
Empfang -
Büro -
Flur -
Ansicht -
Innenhof -
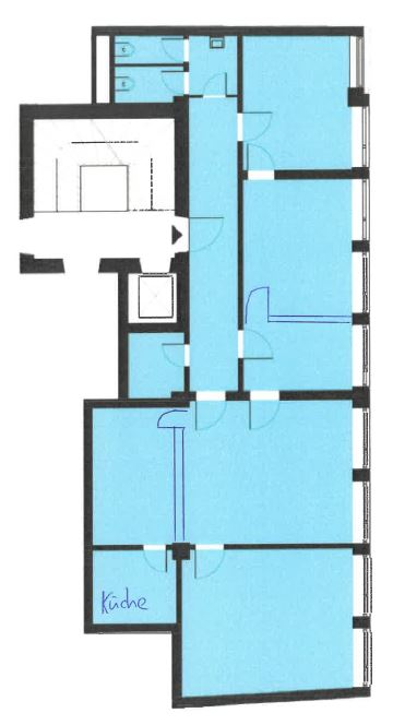
Grundriss
Objektdaten
GESAMTFLÄCHE:
ca. 118.60 m²
OBJEKT-NR.:
BH760
MIETE / m²:
39,00 €
Beschreibung
Hochwertige Bürofläche in repräsentativem Geschäftsgebäude.
Das Büro teilt sich aktuell auf in vier Büroräume sowie einen Meeting-/Empfangsraum. Eine kleine Teeküche mit Vorraum, ein Lager-/Serverraum und WC sind ebenso vorhanden.
Absolut ruhig gelegen in einem Innenhof!
Neuer Ausbau nach Mieterwunsch möglich.
Lage
80333 München
Top Lage - Theatinerstraße
Top Lage - Theatinerstraße
AUSSTATTUNG
+ zentral und ruhig
+ exklusiver Bürostandort
+ gepflegtes Geschäftsgebäude
+ Teeküche vorhanden
+ Personenaufzug
+ exklusiver Bürostandort
+ gepflegtes Geschäftsgebäude
+ Teeküche vorhanden
+ Personenaufzug
Energie
SONSTIGE ANGABEN
Weitere Informationen und Bilder zum Objekt erhalten Sie in unserem Mietexposé, das wir Ihnen auf Wunsch gerne zusenden. Eine Besichtigung ist kurzfristig möglich.
Alle Informationen zu Preisen, Flächen und Ausstattung beruhen auf den Angaben des Eigentümers beziehungsweise Vermieters. Wir übernehmen keine Gewähr für die Richtigkeit dieser Angaben.
Sie haben noch nicht das Richtige gefunden? Rufen Sie uns an, wir beraten Sie gerne. 089 - 416 177 122
Makler kontaktieren
Kontaktanfrage an Emslander & Company
Repräsentatives Innenstadtbüro - Ausbau nach Mieterwunsch
Expose: BH760
Kontakt
Vermietungsteam
Email: vermietung@emslander-co.de
Telefon: 004989416177122
Mobil:




